



Casa RF
Vivienda rural que dialoga con el paisaje agrícola, utilizando materiales locales y técnicas constructivas tradicionales.
Ubicada en un sector rural de Curicó, en el corazón de la zona central de Chile, la Casa RF se implanta sobre un terreno completamente plano, propio del paisaje agrícola del lugar. El proyecto responde a un clima mediterráneo, donde el control del asoleamiento y la protección frente a las lluvias resultan determinantes en la definición de su arquitectura. La vivienda se orienta hacia el nororiente, privilegiando el ingreso de luz natural durante la mañana y reduciendo la exposición al sol de la tarde, estableciendo una relación directa y eficiente entre los espacios interiores y el entorno rural inmediato. Esta orientación permite que los recintos principales se abran hacia el norte, favoreciendo el confort térmico y lumínico, mientras que vanos estratégicos complementan la ventilación cruzada.
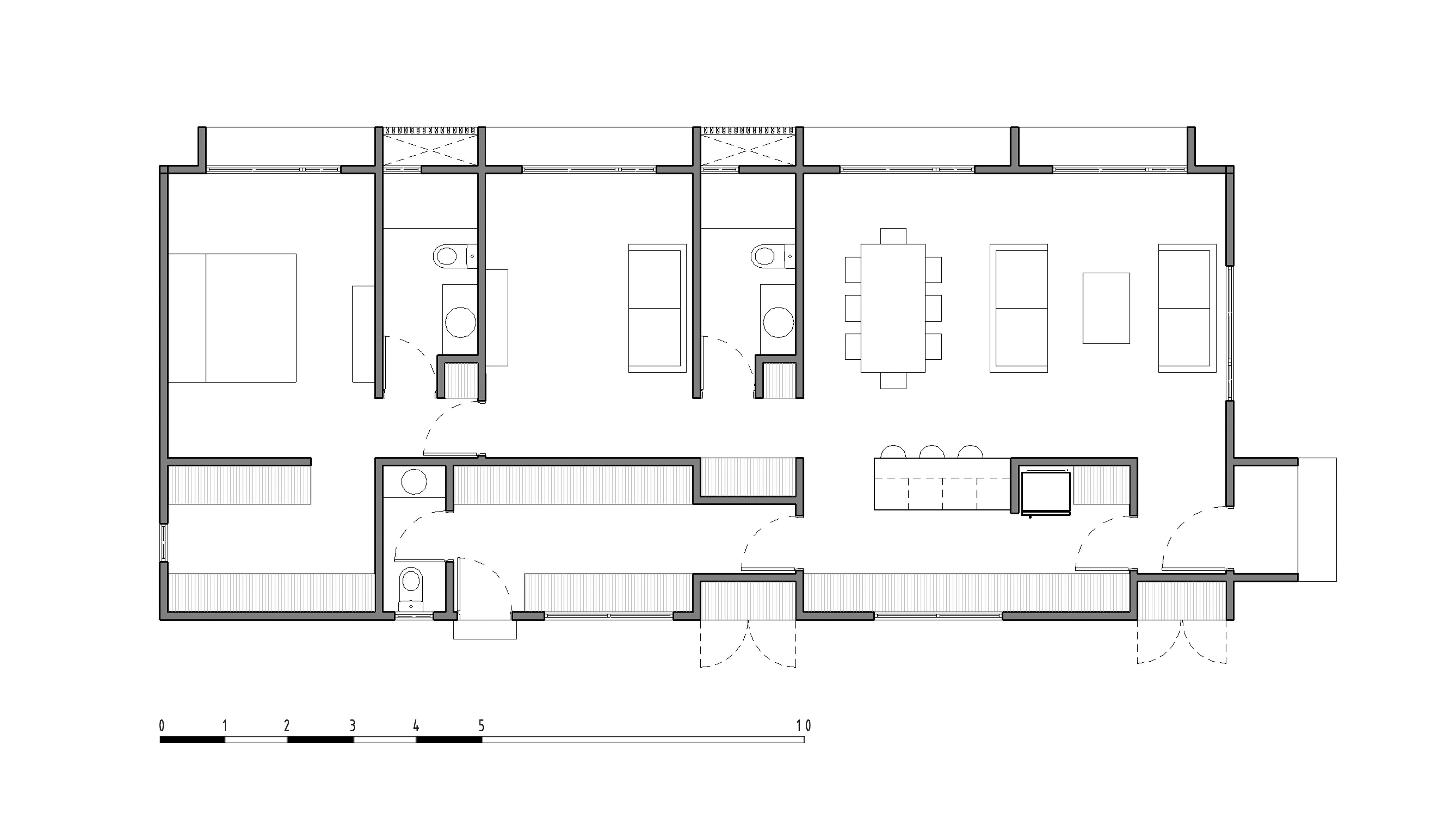
Formalmente, la casa se concibe como un volumen lineal y compacto, de geometría regular, coronado por una cubierta a dos aguas que refuerza su carácter doméstico y esencial. Desde este volumen principal se desprenden dos extrusiones: un alero continuo en la fachada norte, que protege los vanos de la lluvia y del asoleamiento directo, y una segunda operación volumétrica que configura el hall exterior de acceso. La planta se organiza mediante una circulación longitudinal que divide la vivienda en dos franjas claramente diferenciadas: hacia el norte se concentran los espacios de uso cotidiano como estar, comedor, dormitorios y baños, mientras que hacia el sur se disponen los recintos de apoyo e instalaciones, como cocina, logia y bodega. La vivienda se desarrolla íntegramente en un solo nivel, con sistema de construcción basado en estructura mixta de paneles SIP y acero, y una materialidad que combina revestimientos exteriores en WPC tipo madera y grafito con interiores de tonos claros y continuos, evidenciando una selección precisa de materiales de construcción. Esta coherencia técnica refuerza una arquitectura sobria, funcional y alineada con su sistema de construcción y contexto rural.
Ubicacion
Región del Maule
Ano
2025
Galeria
Planos
