



Quincho NR
Estructura auxiliar que funciona como refugio y espacio de reunión, con materialidad en madera y hormigón.
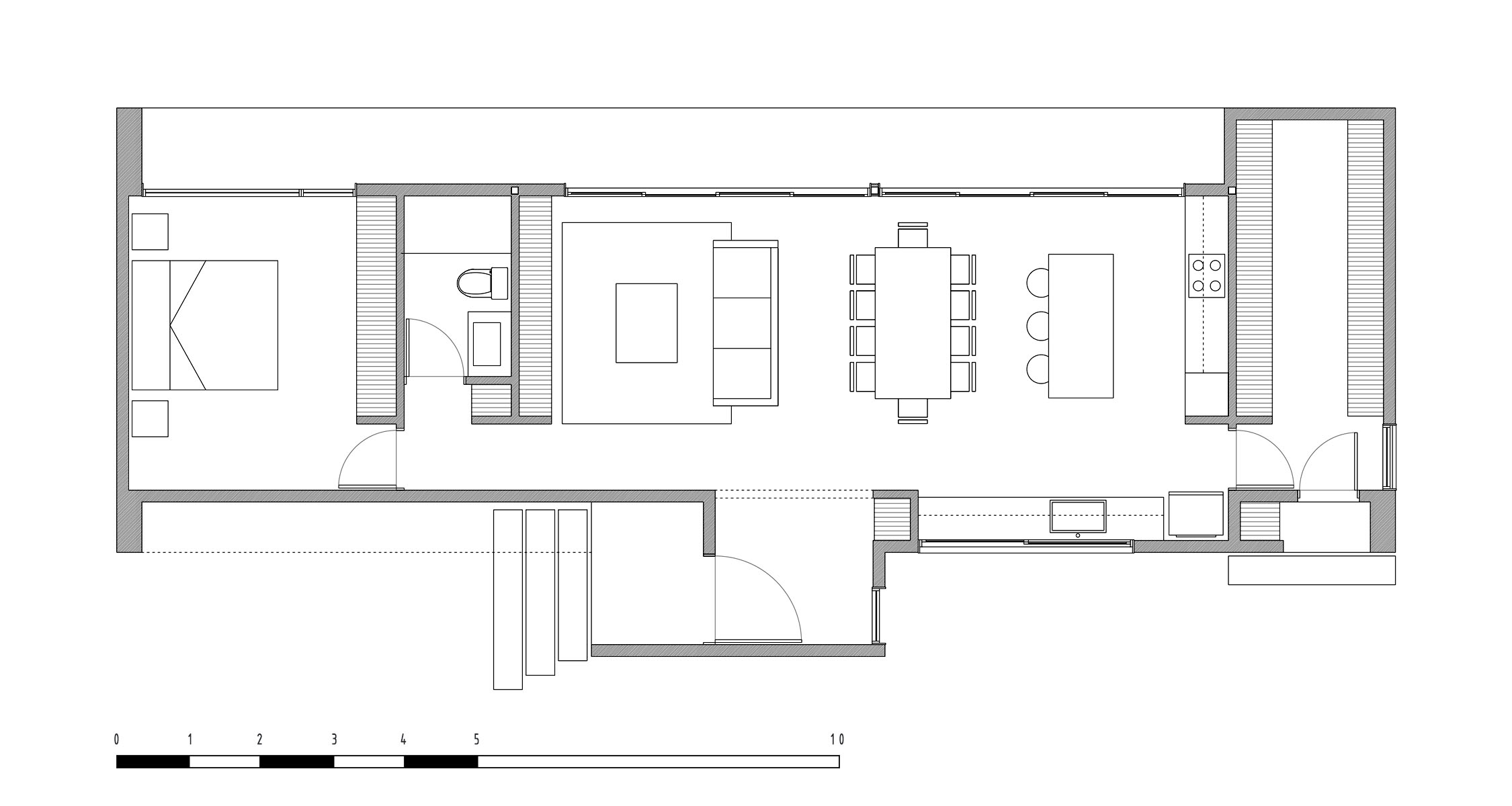
El proyecto se emplaza en Curicó, Región del Maule, sobre un terreno con pendiente creciente y orientación norponiente, abierto completamente hacia el valle central, lo que permite una vista amplia e ininterrumpida del paisaje. Esta condición territorial define la arquitectura del volumen, que se implanta en un solo nivel, apoyándose directamente sobre el terreno y rotándose 45 grados desde el poniente hacia el norte, estrategia que busca proteger los recintos del asoleamiento directo de la tarde y optimizar el control térmico. La propuesta nace originalmente como un quincho para la Casa NR, concebido como una primera etapa previa a la vivienda definitiva, pero evoluciona incorporando un dormitorio, baño, bodega y cierres perimetrales, permitiendo su uso como una casa habitable desde el inicio. Formalmente, se plantea un volumen lineal, limpio y ordenado, que no busca mimetizarse con el entorno, sino presentarse como una pieza pétrea, pesada y claramente definida, posada sobre el paisaje y enmarcada por una losa, alero y muros perimetrales de proporciones controladas que refuerzan la lectura horizontal del conjunto.
La organización espacial se resuelve de manera lineal, disponiendo el programa de norte a sur en una secuencia clara: bodega, cocina integrada, comedor, living y acceso, para rematar en el extremo sur con el dormitorio y su baño. El acceso, orientado desde la fachada oriente, se proyecta de forma perpendicular al volumen principal, rompiendo la linealidad y potenciando la experiencia visual hacia el valle al momento de ingresar. El sistema de construcción combina estructura de perfiles de acero con paneles SIP, manteniendo una envolvente exterior de hormigón visto que refuerza el carácter monolítico del volumen y evidencia la elección precisa de materiales de construcción, dialogando por contraste con los tonos cálidos de la vegetación y las rocas del lugar. La cubierta a cuatro aguas, de pendiente leve, permite reducir la altura de los frentes y aleros, reforzando la horizontalidad del proyecto dentro de una lógica estructural clara de construcción. En términos ambientales, se prioriza el ingreso de luz natural desde la fachada oriente en las primeras horas del día y grandes aperturas hacia el norponiente para capturar las vistas, complementadas con ventilación cruzada natural, aprovechando los vientos característicos de la ladera para mejorar el confort térmico interior, consolidando una arquitectura coherente con su emplazamiento y sistema estructural.
Ubicacion
Región del Maule
Ano
2024
Galeria
Planos
