



Casa NR
Proyecto residencial que prioriza la eficiencia energética y la integración con el contexto rural circundante.
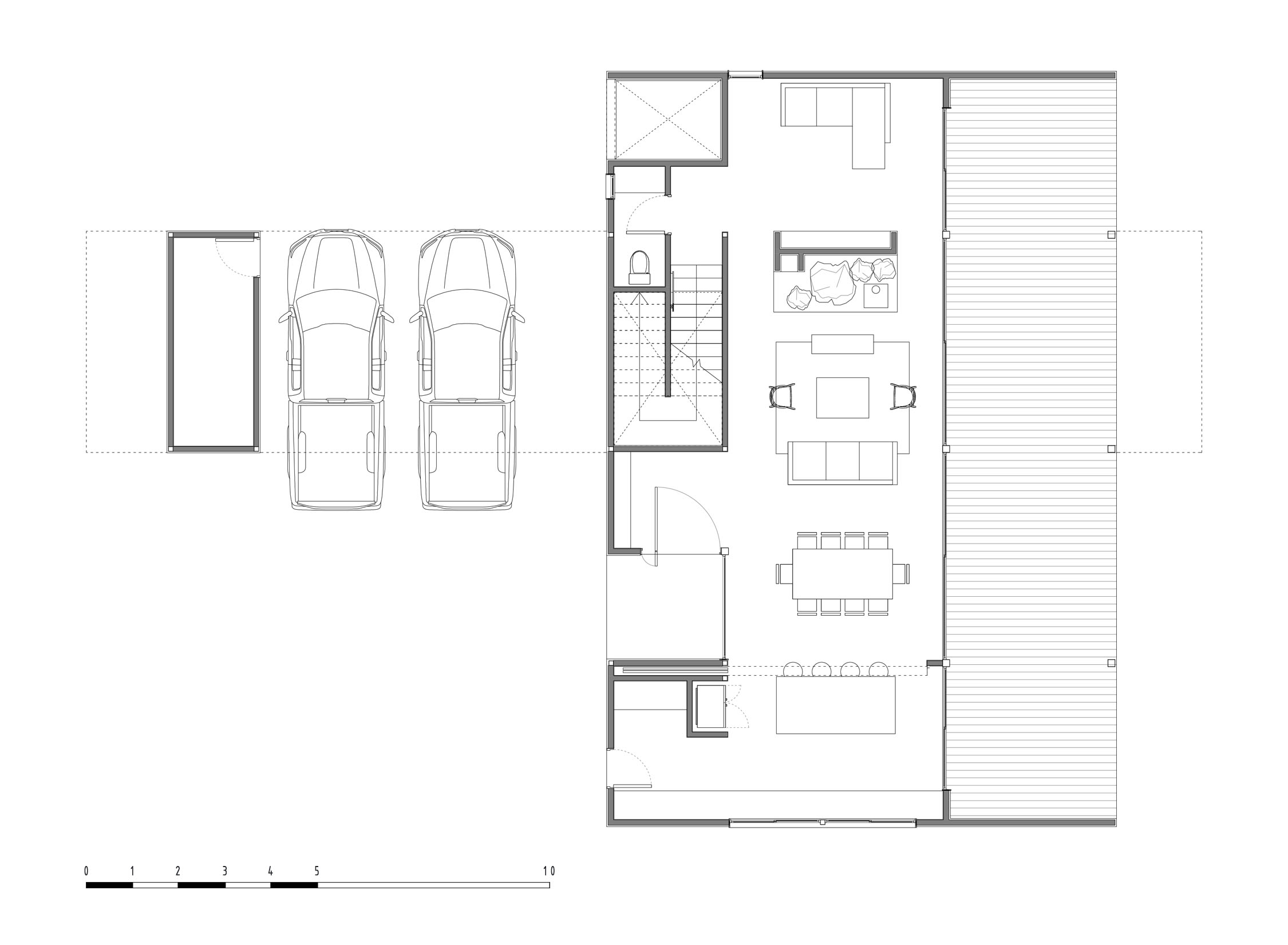
Emplazada en la cota más alta del terreno para aprovechar las vistas abiertas hacia el norponiente, la vivienda se organiza a partir de dos volúmenes complementarios, definiendo con claridad la arquitectura del conjunto. El sitio presenta una pendiente variable que se suaviza en la parte superior, permitiendo que la casa se oriente levemente hacia el norte para recibir la luz de la mañana y protegerse de la radiación de la tarde. Desde este punto, el proyecto establece una fuerte conexión con el paisaje mediante amplias aperturas hacia el oriente y el norponiente, así como recorridos que mantienen siempre la presencia del exterior. El nivel inferior, extendido en dirección norte-sur, reúne todos los espacios públicos, estar, comedor, cocina y áreas de servicios en una planta fluida y continua, donde la terraza actúa como prolongación natural del interior y como elemento de sombra a lo largo del día.
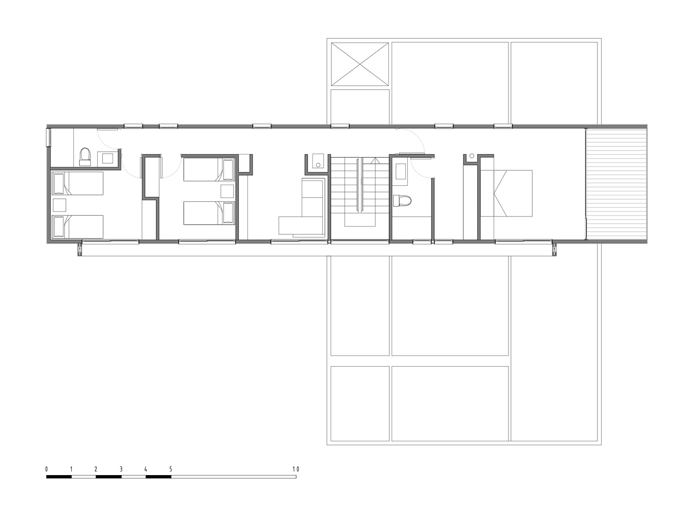
Sobre este primer volumen se posa el segundo nivel, configurado como una pieza independiente que cruza en sentido oriente-poniente y contiene todos los espacios privados. Esta superposición de formas enfatiza visualmente la distinción entre áreas comunes y dormitorios, además de generar bajo el volumen superior un espacio resguardado que funciona como estacionamiento sin alterar la expresión general de la casa ni su lógica de construcción. El recorrido en el nivel inferior se organiza mediante dos circulaciones paralelas que permiten libertad de movimiento y una constante relación con el exterior, mientras que en el nivel superior un pasillo lineal ordena los dormitorios y una pequeña sala de estar orientada al oriente. La materialidad combina tonos neutros, madera y superficies limpias que refuerzan la calidez del interior y contrastan con la textura exterior, diferenciando sutilmente cada volumen y evidenciando la selección precisa de materiales de construcción. Grandes aleros, ventilación cruzada y aperturas estratégicas completan una obra que busca habitar el paisaje, aprovechar la luz y mantener una relación equilibrada entre forma, función y entorno, consolidando una arquitectura coherente con su sistema estructural y proceso.
Ubicacion
Región del Maule
Ano
2023
Galeria
Planos


