





Quincho VA
Espacio de encuentro y celebración que complementa una vivienda existente, con énfasis en materialidad y apertura al jardín.
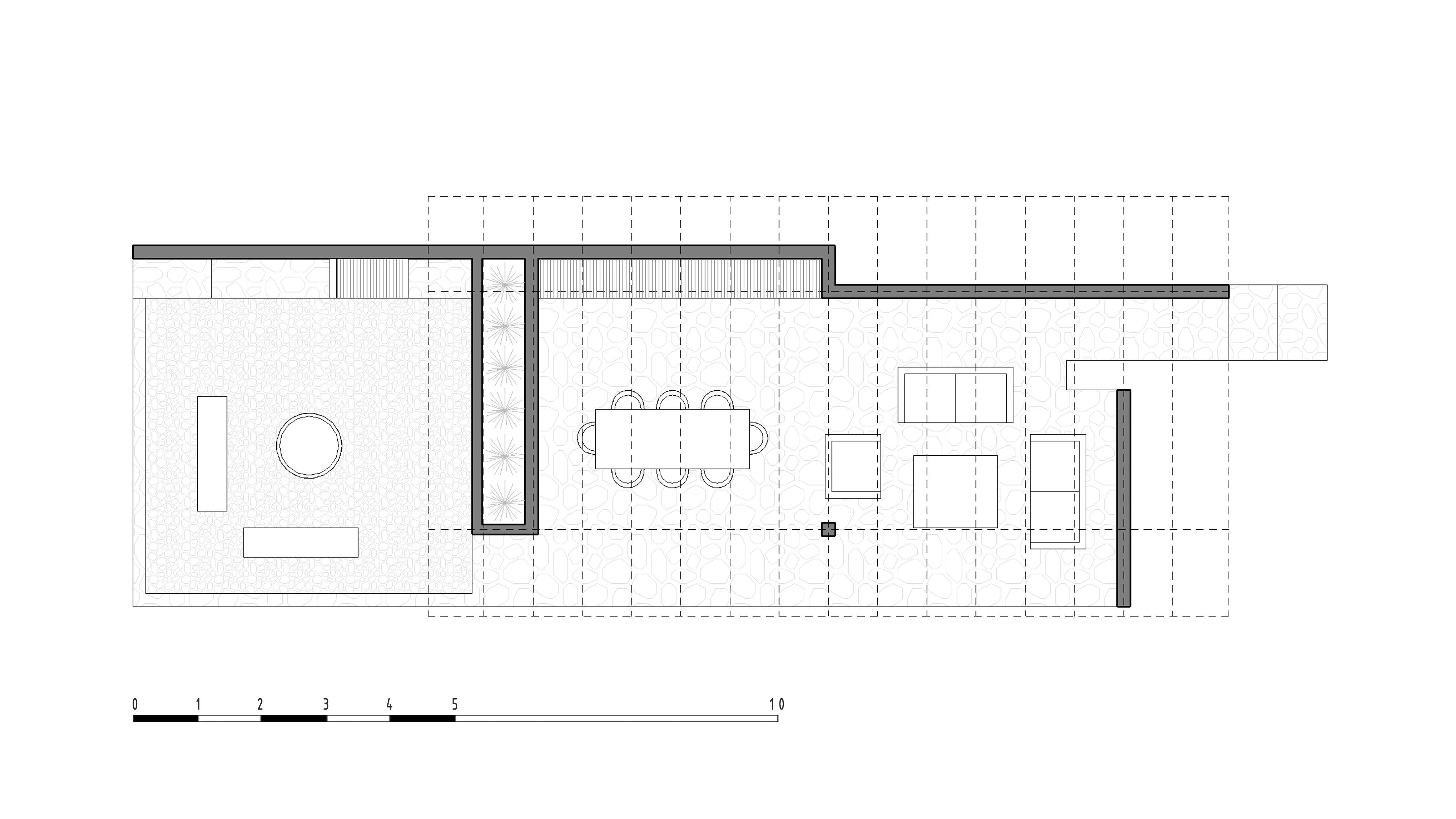
El proyecto se implanta en una parcela plana de 5.000 m2, situando el quincho en el deslinde poniente-oriente para controlar la luz de la tarde mediante un muro continuo que actúa como filtro y respaldo del programa. Esta operación define la arquitectura del conjunto y libera el frente norte-sur hacia el jardín, estableciendo una relación abierta y directa con el terreno, acorde al clima mediterráneo del lugar. La organización responde a una secuencia lineal que vincula acceso, terraza, comedor exterior, cocina y área de fogón, permitiendo un recorrido fluido que acompaña el uso cotidiano del espacio. El proyecto privilegia las vistas y la sombra, generando un ambiente de resguardo hacia el poniente y una apertura completa hacia el interior del predio.
La propuesta se estructura mediante la superposición de tres capas: una losa que se posa sobre el terreno como plataforma continua, un sistema de muros de albañilería que define y contiene los recintos, y una cubierta a un agua que se apoya sobre vigas de acero y un envigado de madera expuesto. Esta lectura diferenciada de los elementos forma parte de la lógica de construcción, permitiendo que la estructura sea visible en la experiencia espacial y reforzando la idea de planta libre mediante un ritmo modular de ejes de 75 cm. La materialidad combina piedra y madera como materiales de construcción principales, integrándose al paisaje inmediato y aportando texturas cálidas y variaciones lumínicas que se intensifican hacia el atardecer. Con el frente completamente abierto y el fogón como remate del recorrido, el quincho se configura como un espacio unitario y versátil, donde la arquitectura y su sistema de construcción permiten extender la vida exterior del conjunto.
Ubicacion
Región del Maule
Ano
2025
Galeria
Planos
